Gebouw voor gemengd gebruik - te koop - 460.000 €
3078 Kortenberg Meerbeek

EPC : C

Beschrijving

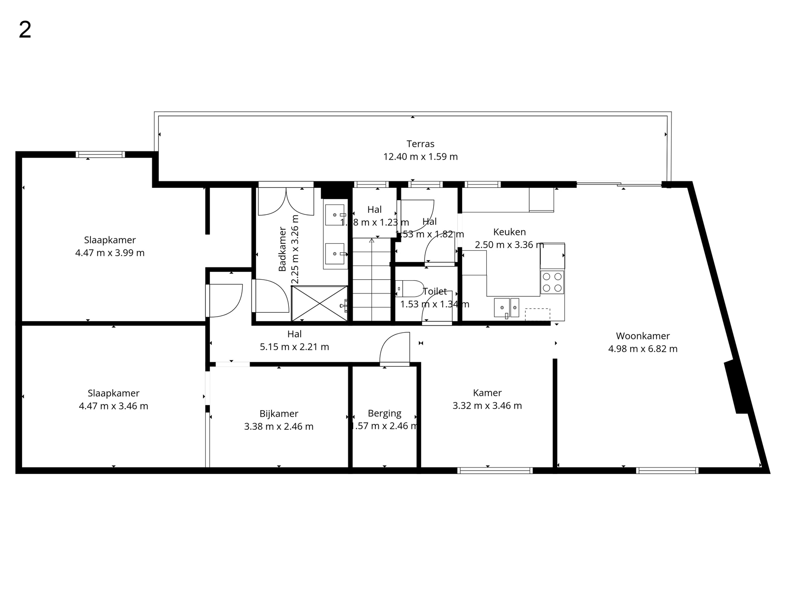
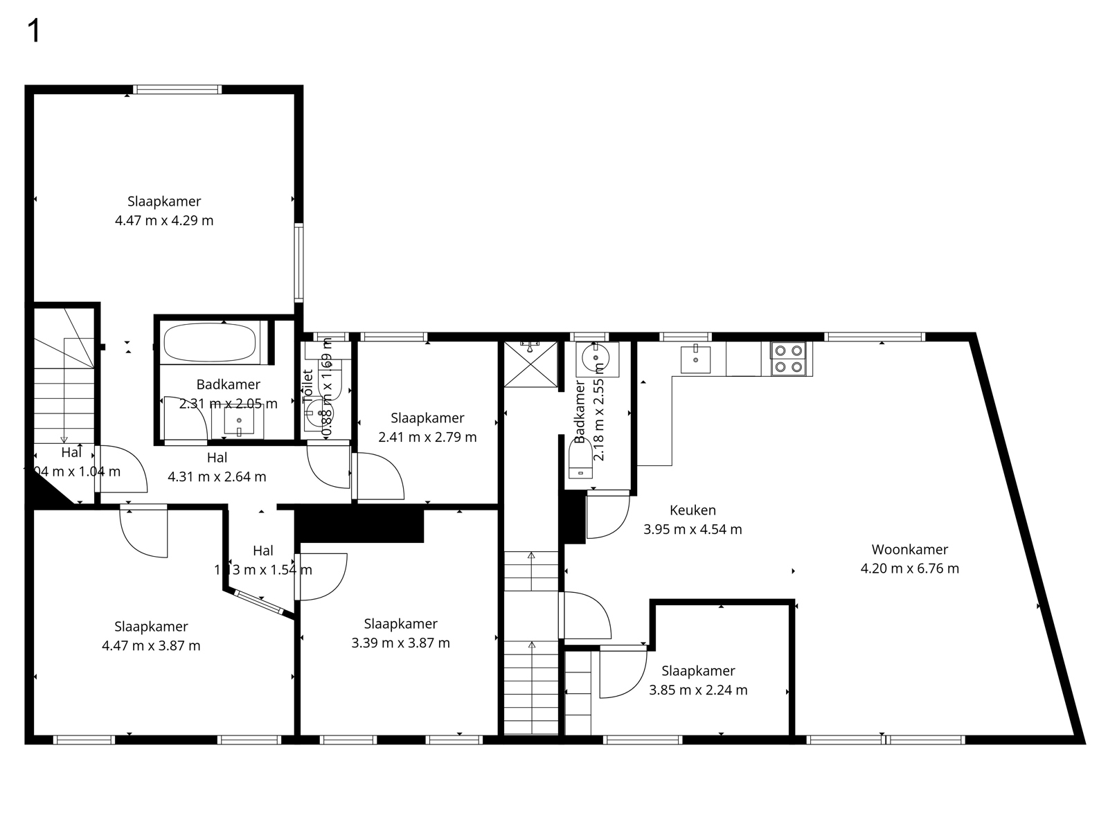
Centraal gelegen gebouw met uitzonderlijk potentieel – Meerbeek (Kortenberg) Dit karaktervolle gebouw, gelegen in de Dorpsstraat in het hart van Meerbeek, biedt een unieke kans voor wie op zoek is naar ruimte en ontwikkelingsmogelijkheden. Volgens de bestaande vergunning betreft het een woning met magazijn. In de actuele toestand zijn echter meerdere wooneenheden ingericht, wat niet overeenstemt met de vergunde situatie. Met een royale bruto oppervlakte van meer dan 570 m² beschikt dit pand over een indrukwekkend volume en tal van mogelijkheden voor wie een project op maat wil realiseren. Dankzij de centrale ligging, de ruime indeling en het sterke potentieel vormt dit eigendom een ideale opportuniteit voor creatieve verbouwers of investeerders.

574 m² 8 10 2 2

Dorpsstraat 57 - 3078 Kortenberg Meerbeek

Algemeen

Referentie 7284260
Categorie Gebouw voor gemengd gebruik
Aantal kamers 8
Aantal badkamers 5
Tuin Ja
Tuinoppervlakte 207 m²
Garage Ja
Terras Ja
Parking Ja
Bewoonbare oppervlakte 574 m²
Oppervlakte van het terrein 481 m²
Beschikbaarheid 01-04-2026

Gebouw

Bouwjaar 1940
Aantal garages 2
Parking buiten Nee
Aantal parking binnen 2
Aantal parking buiten 0

Naam, Categorie & Ligging

Verdiepingen - aantal 2

Basisuitrusting

Voorzieningen gehand. Nee
Lift Nee
Type verwarming gas cv
Keuken - type VS geïnstalleerd

Omgeving

Oriëntatie (achtergevel) zuidoosten
Type buurt woonkern
Overstromingsrisico 2023 (overstromingstype) Klasse A (geen kans)
G-score (waarde) A
P-score (waarde) A
WORG Nee

In cijfers

Breedte aan straatkant 19
Bebouwde oppervlakte (opp.hoofdgebouw) 274
Toiletten - aantal 6
Aantal douchekamers 5
Terras - aantal 2

Aansluitingen

Riolering Ja
Elektriciteit Ja
Kabeltelevisie Ja
Gas Ja
Water Ja

Technische uitrusting

Type schrijnwerkerij hout

Certificaten

Bodemattest Ja
Elektriciteitskeuring beschikbaar (ja/nee) ja, niet conform
Asbestattest beschikbaar (verplicht voor alle panden gebouwd vóór 2001) Ja

Hoofdkenmerken

Terras 1 (oppervlakte) 14 m²

Energie

EPC-klasse C
EPC (Kwh/m²/j) 295
EPC unieke code 202510140003709279 RES 1
EPC valid until (datetime) 10-10-2035
EPC datum (datetime) 14-10-2025

Documenten

Contact opnemen voor het pand : 7284260
* Verplichte velden

Door mijn verzoek te verzenden geef ik de toestemming dat mijn gegevens die in dit formulier ingevuld zijn gebruikt worden door MEDIATORE voor hierondervernoemde doeleinden en dit in overeenstemming met het charter privéleven van deze website. Ik kan op elk moment mijn toestemming intrekken door een schriftelijke aanvraag in te dienen op volgend e-mailadres: info@mediatore.be.

Cookievoorkeuren

De bescherming van uw persoonsgegevens is belangrijk voor ons. Daarom beschrijven we hieronder de verschillende diensten en functies van de site die cookies gebruiken en laten we u beslissen welke cookies u wilt toestaan ​​of weigeren.

Houd er echter rekening mee dat als u bepaalde soorten cookies blokkeert, dit van invloed kan zijn op uw browse-ervaring op onze site en op de beschikbare functies.

We gebruiken verplichte functionele cookies om de site goed te laten werken. Ze zijn bijvoorbeeld nodig om het resultaat van een zoekopdracht te vinden of om de taalkeuze op te slaan.

Sommige functies, zoals de weergave van video's of kaarten, worden geleverd via externe componenten die zijn ontwikkeld door partners zoals YouTube of Google. Bepaalde componenten gebruiken cookies die deze derden waarschijnlijk in staat stellen het gedrag van internetgebruikers te volgen om bijvoorbeeld reclametargeting uit te voeren. De activering van deze functies en de bijbehorende cookies is daarom onderworpen aan uw toestemming.